A Workshop For Your Hobbies and Toys
One of the reasons people buy floor plans and build barndominiums is that it allows them to have a large shop and place to park all of their outdoor toys like boats, side-by-sides, and RVs.
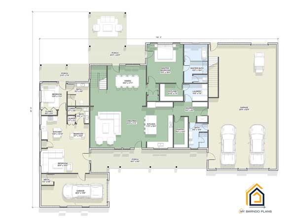
This set of barndominium plans is built to incorporate a large shop and plenty of parking. All of the floor plans can be customized to suit your needs better. We have 50×100 plans with shops and 40×60 plans with 3 garages, workshops, and RV Parking.
Barndominium Floor Plans with Shops
Choosing the Right Layout for a Barndominium with a Shop
Barndominium floor plans with shops are designed for homeowners who want living space and a functional workspace under one roof. As you review the plans above, pay attention to how the shop connects to the main living area and how the garage bays are arranged.
How to Compare Barndominium Plans with Shops
- Shop size and garage bays: Consider how much space you need for vehicles, equipment, or hobbies. Some layouts prioritize larger workshop bays while others emphasize living space.
- Door height and access: Taller garage doors and wide bays make it easier to store tractors, boats, RVs, and trailers.
- Shop-to-house layout: Some plans connect the shop directly to the main living space, while others create separation to reduce noise and improve privacy.
- Equipment maneuvering space: Look for floor plans that provide enough depth and width in the shop area to move vehicles and equipment comfortably.
- Future flexibility: Larger shops can evolve over time, serving as hobby workshops, storage areas, or additional workspace as your needs change.
When comparing these homes, focus on how the shop integrates with the overall structure. A well-designed barndominium layout allows the shop, garage, and living space to function together without sacrificing comfort inside the home.
Functionally Designed
Barndo Plans Include:
- Architectural floor plans and exterior elevations
- Foundation layout with detailed dimensions
- Electrical layout details
- Plumbing rough-in schematic
- Detailed build-ready measurements
- Window and door schedule
- Digital PDF download for fast access
- Optional printed blueprint set
Each barndominium floor plan with a shop is designed with real construction in mind and includes the detailed drawings builders need to move from planning to framing with confidence.
If you plan to build one of these designs, our barndominium kits can help simplify the process by delivering the structural system engineered for your project.

The Best Barndominium Floor Plans and Kits for Sale on The Web
Buy your floor plans from a company that has experience manufacturing steel buildings and erecting barn-style homes, also known as barndominiums. We only sell floor plans that we would build, and all of our plans are available as steel building kits, and most are available as SIPs kits.





















