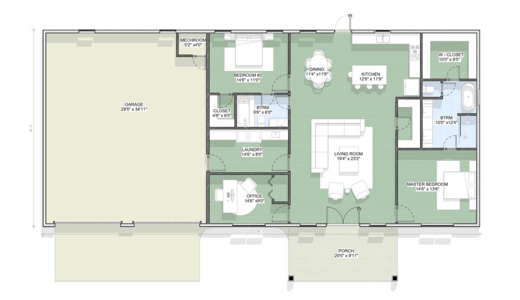
Heritage Barndominium 1800 Square Feet Floor Plan
Heritage | 1,801 sq ft 2-Bedroom Barndominium Floor Plan with Dedicated Home Office
A great small barndominium plan with a garage and shop. This barndo has 2br, 2ba, and a home office. The barndominium can be built anywhere in the USA; Structural changes will be made for high wind or snow areas.
This home plan can be modified to meet your needs.
Heritage Barndominium Floor Plans & Pricing
Floor Plan Specifications
This floor plan can be modified to meet your needs. This kit is best built in Cold-Formed Steel or SIP. Red Iron is available.
Heritage Barndominium
Choose your plan package below
Need Help with Your Barndominium?
Speak with a build advisor — not a sales rep. Free, no obligation.
Get Personalized Help — Free, No ObligationKit Prices for the Heritage
Love this plan? A kit ships you the entire building system — materials, engineering & more.
OVERVIEW OF 1,801 SF HERITAGE BARNDOMINIUM PLAN
2-BR, 2BA, and a HOME OFFICE
Introducing the innovative Barndominium living experience – blending comfort, utility, and luxury into one seamless design. Our carefully crafted barndo floorplan features 2 spacious bedrooms and 2 full baths, promising ample room for everyone.
Home Floor Plan includes:
- Floor Plan designed by an architect
- Roof Plan
- Electrical Plan
- Window and Door Schedule
- Elevations
- Renderings
The master suite is an oasis of tranquility, featuring a roomy walk-in closet to house your entire wardrobe and a large, luxurious master bathroom that ensures your private space is as comfortable as it is functional.
For those working from home or needing a quiet place to concentrate, the study/office provides an ideal setting. It’s designed for productivity and peace – an inspiring space to bring your best ideas to life or to just enjoy your favorite books in solitude.
*Please note the width and depth include the garage but it does not include the front porch. The covered front porch on this barndo is 10′-10″
Barndominium Floor Plan is designed to give you ample living space with a beautiful open floor plan that can be
The heart of The Heritage Barndominium is its open floor plan, which encourages effortless flow between living spaces. This design promotes social connection and makes entertaining a breeze. The impressive kitchen, equipped with modern fixtures and finishes, stands at the center of it all. It’s not just a kitchen; it’s a place for bonding, conversation, and making memories while you cook and eat.
The Heritage Barndominium master suite is laid out to be an oasis of tranquility, featuring a roomy walk-in closet to house your entire wardrobe and a large, luxurious master bathroom that ensures your private space is as comfortable as it is functional.
We planned for enough room to have a gathering kitchen that connects seamlessly to the living room and adjacent dining area. The kitchen counter will have space for seating. This barndominium floor plan is designed to maximize the living space.
This oversize two-car garage has room for all your toys and direct access to the barndo through the utility room.
The Red Iron Steel Barndominium kit includes:
- Structure,
- siding,
- roofing,
- purlin,
- girts
- does NOT include erecting the kit.
Red Iron is offered for most of our kits, but smaller homes build better in other kit types.
Kit Does Not Include: (priced separately)
- Wood or accessories pictured (available add-on)
- Windows & Door (available add-on)
- Sofit (available add-on)
- Shutters, accessories,
- anything not explicitly mentioned in the “included” list. If you have a question, please ask.
All weld-up kits will come with painted columns and trusses cut to size.
The welder will do all wall girts, roof girts, and cutouts on-site.
Heritage Cold-Formed Steel
Cold-formed Kits are becoming our most popular kits because once they are erected, you are 55-60% done building your home.
This kit includes
- All interior walls
- Exterior walls
- Roof trusses
- Windows (black windows are an upgrade)
- Exterior doors
- R3 Zip Sheathing
- Metal Siding (Hardie board is an upgrade)
- Metal Roofing
This kit does NOT INCLUDE:
- garage doors
- drywall
- wiring
- foundation
- or any wood or trim accents not mentioned in the included section.
SIP Is Our Most Complete Home Kit for the Heritage
This kit does not require the red iron kit. You buy one kit or the other.
The Garage is not SIP—only the house. The garage is standard framing (included in the kit). (Garage SIP upgrade is 26k)
- Structural Insulated Panels or SIP for the entire living area structure
- Closed Cell Foam Walls and Roof
- Windows
- Exterior Doors
- Internal Framing
- Moisture barrier
70% of the home is complete after erecting. (Kit does not include erecting)
Benefits of our SIP Kits:
- Energy Efficiency: SIPs provide superior insulation compared to traditional building methods, leading to significant energy savings for heating and cooling.
- Strength and Durability: SIPs are structurally robust and can withstand considerable loads, making them suitable for various building applications.
- Speed of Construction: Buildings constructed with SIPs can be erected faster than those using traditional framing methods because the panels are prefabricated and can be quickly assembled on-site.
- Reduced Air Infiltration: SIPs create a tighter building envelope, which reduces air leakage and improves indoor air quality and comfort.
- Design Flexibility: SIPs can be manufactured in various sizes and shapes, allowing for flexibility in architectural design.
Get Your Heritage Barndominium 1800 Square Feet Floor Plan Plans
Quick PDF delivery. Architect-sealed for permits. Modify to fit your lot, climate, or style — from $150.
Starting at $800 • Single-build license • Quick download
Speak with a build advisor — not a sales rep. We respond within 1 business day.
Thank you for reaching out.
We are here to help. We talk to people just getting started and people ready to break ground. Knowing about your project helps us know where you are in the process before we talk. You will receive an email from Stonie Alfred requesting a bit more information so we can connect you with a home advisor. Filling out the extra information is not required, but it will improve your experience with our team. Happy Building, The My Barndo Team. We are on a mission to improve the home-building process by delivering the most efficient homes at affordable prices.Related products
- 1STORIES
- 2BED
- 2BATH
- 1200SQ.FT
- 30 WIDTH
- 40 DEPTH
- 2STORIES
- 4BED
- 3BATH
- 1 ½ BATH
- 3074SQ.FT
- 56 WIDTH
- 48 DEPTH
- 2STORIES
- 3BED
- 3BATH
- 3 GARGS
- 2815SQ.FT
- 70 WIDTH
- 50-4 DEPTH
- 1STORIES
- 3BED
- 3BATH
- 3 GARGS
- 2661SQ.FT
- 70 WIDTH
- 50 DEPTH




