4 Bedroom Barndominium Floor Plan The Arcadia
Arcadia | 2,405 sq ft 4-Bedroom Barndominium Floor Plan with Single-Slope Roof and Modern Design
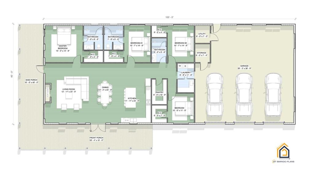
Four-bedroom barndominium with 3 baths and an oversized 3-car garage and shop, all in a single-story modern floor plan with a single slope roof.
This plan is very similar to our Longhorn, which has a gable roof.
Arcadia Modern Barndominium Floor Plans & Pricing
Floor Plan Specifications
This home plan can be modified to meet your needs.
Arcadia Modern Barndominium
Choose your plan package below
Need Help with Your Barndominium?
Speak with a build advisor — not a sales rep. Free, no obligation.
Get Personalized Help — Free, No ObligationArcadia Home Kit
Love this plan? A kit ships you the entire building system — materials, engineering & more.
Floor Plan Details: Arcadia Modern Barndominium
2,405 SF BARNDOMINIUM FLOOR PLAN 4 Bedroom, 2 Full Baths, + 1/2 Bath Open Floor Plan
As we approach the 4 bedroom open floor plan barndominium, we’re greeted by an exterior that artfully merges functionality and sophistication. The structure, made from sturdy steel framing, boasts a sleek modern design with the rugged, rural aesthetic of a barn.
Barndominium Home Plan includes:
- Floor Plan designed by an architect
- Roof Plan
- Electrical Plan
- Window and Door Schedule
- Elevations
- Renderings
The focal point of the exterior is undoubtedly the unique modern design, but the expansive covered porch near the living area can’t be overlooked. The covered porch invites relaxation with ample space for all-weather seating and strategically placed outdoor lighting that creates a warm ambiance during the evening. The porch can be built to seamlessly integrate with the main building, extending the home’s living space into the outdoors.
Upon entering the 2,405-square-foot home, we’re greeted by an open floor plan that marries comfort with a sense of endless space. The high, vaulted ceilings add to the grandeur, while polished concrete floors underfoot offer a chic yet practical touch. The living area, dining room, and kitchen blend into one harmonious space, making the home an ideal setting for gatherings and casual family dinners.
This barndominium is a remarkable example of how barn-style living can be both upscale and comfortable, offering a distinctive take on modern rural living. It truly encapsulates the essence of a refined, contemporary lifestyle within a rustic country setting.
This Barndominium could easily be converted into a shop / showroom for a modern office showroom combination.
The high ceilings on the front of the home accentuate an Open Floor Plan where you can gaze from the kitchen into the living area. The floor plan is designed so that the living area, dining room, and kitchen blend into one harmonious space, making the home an ideal setting for gatherings and casual family dinners.
The home offers four bedrooms, each embodying a unique blend of modern design and country charm. The large windows allow for natural light to spill in and give the home an expansive feel. The master suite will feel like a retreat featuring a luxurious en-suite bathroom that is big enough to be equipped with a soaking tub, walk-in shower, and dual vanities.
The kitchen should feature high-end stainless steel appliances and a large island that can double as a breakfast bar. Our barndo designer believes that Quartz countertops will provide a sharp contrast against the minimalist cabinetry, with both elements enhancing the modern style of the barndominium.
Not to be overlooked is the spacious garage and shop space, which can house multiple vehicles or function as a workshop for various crafts and hobbies. The interior is illuminated by LED lights, offering an optimal workspace. The garage’s design ensures that this area is not just a practical addition but also an extension of the home’s stylish character.
Configure The Arcadia To Estimate Your Budget.
- Engineered plans for the base metal structure are included
- Porches, rafters, and posts are usually made of wood, which is not included.
- All wall girts, roof girts, and cutouts will be done on-site by the welder.
- Weld-up kits will provide the CNC cut clips for metal structures.
- All clips will be welded on-site by the contractor.
- Paneling is included in the client’s choice of standard colors. Metal Gauge:
- 26 Gauge PBR Panel for Roof & Walls.
- Peak boxes included
- Rake end caps included
- Colored Tek and Lap Tek screws are included for Panels.
- Butyl Tape and PBR closures are included.
- Doors and windows are not included.
- Approx. 4-6 weeks delivery time after finalized engineered plans have been received and signed
Get Your 4 Bedroom Barndominium Floor Plan The Arcadia Plans
Quick PDF delivery. Architect-sealed for permits. Modify to fit your lot, climate, or style — from $150.
Starting at $950 • Single-build license • Quick download
Speak with a build advisor — not a sales rep. We respond within 1 business day.
Thank you for reaching out.
We are here to help. We talk to people just getting started and people ready to break ground. Knowing about your project helps us know where you are in the process before we talk. You will receive an email from Stonie Alfred requesting a bit more information so we can connect you with a home advisor. Filling out the extra information is not required, but it will improve your experience with our team. Happy Building, The My Barndo Team. We are on a mission to improve the home-building process by delivering the most efficient homes at affordable prices.Related products
- 1STORIES
- 2BED
- 2BATH
- 2 GARGS
- 1801SQ.FT
- 80 WIDTH
- 36 DEPTH
- 2STORIES
- 4BED
- 3BATH
- 8 GARGS
- 3058SQ.FT
- 90 WIDTH
- 50 DEPTH
- 1STORIES
- 5+BED
- 3BATH
- 1 ½ BATH
- 2 GARGS
- 4453SQ.FT
- 116 WIDTH
- 52 DEPTH
- 1STORIES
- 2BED
- 2BATH
- 2 GARGS
- 1200SQ.FT
- 62 WIDTH
- 56 DEPTH




