The Hammond Barndominium Plan
Hammond | 3,058 sq ft 4-Bedroom Barndominium Floor Plan with 1,883 sq ft Garage and Shop
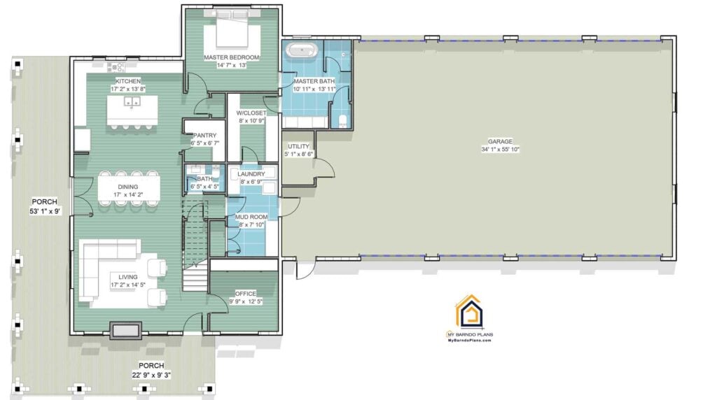
This barndominium floor plan was designed for a client that collected cars. This garage can comfortably fit 8 cars with room to spare. Other clients have purchased this plan and reduced the number of garage doors but kept the total space. The floor plan has 4 bedrooms, 3 full baths, and a wrap-around porch.
The barndominium can be built anywhere in the USA; minor structural modifications will be made for high-snow and high-wind areas.
See floor plans, specs & pricing belowHammond Barndominium Floor Plans & Pricing
Floor Plan Specifications
This floor plan can be modified to meet your needs.
Hammond Barndominium
Choose your plan package below
Need Help with Your Barndominium?
Speak with a build advisor — not a sales rep. Free, no obligation.
Get Personalized Help — Free, No ObligationHammond Home Plan Kit Prices
Love this plan? A kit ships you the entire building system — materials, engineering & more.
Floor Plan Details: Hammond Barndominium
Four Bedroom Barndominium Plan “The Hammond” 3,058 Floor Plan with 1,883 Sq Ft Garage / Shop
4 Bedrooms total, with an Upstairs Master Bedroom that allows for maximum privacy for the homeowner. This barndominium floor plan is magnificent and it is easy to modify the garage / shop to match your specific needs. There is also a small loft space on the 2nd floor. Our four-bedroom barndominium plans and home kits, including the Hammond, can be modified but it may impact kit cost.
Home Floor Plan includes:
- Floor Plan designed by an architect
- Roof Plan
- Electrical Plan
- Window and Door Schedule
- Elevations
- Renderings
Introducing “The Hammond” – the heartbeat of luxury barndo living for the family with lots of cars or lots of toys. It is a superior blend of functionality and grandeur, meticulously crafted for the modern family. This amazing two-story Barndominium showcases comfort, style, and flexibility to cater to your changing needs.
Step into a welcoming open floor plan that seamlessly flows from the living, dining, and kitchen areas. This design promotes an engaging, social atmosphere – perfect for entertaining or spending precious family time. The dream kitchen should feature state-of-the-art appliances, and we designed for ample countertop space and stylish fittings.
The Hammond is not just a house; it’s a path to a better lifestyle. It represents an effortless blend of design, luxury, and functionality. Make The Hammond your home, and elevate the way you live.
The Barndominium’s master bedroom is upstairs based on a client request. This freed up room on the low floor for another bedroom. The upstairs master bedroom allows for maximum privacy when you have guests staying with you. The opulent master suite, your private retreat has an amazing closet and bathroom.
The Hammond features a design that affords peace and privacy, offering the ideal environment for productivity. Additionally, the downstairs area includes two guest rooms and large entertaining areas.
The barndominiums kitchen has been designed to be highly functional, featuring a spacious countertop accommodating dining or casual conversations with the chef. Additionally, the chef can enjoy a comfortable view of the open living area while cooking. Your dream barndominium should have a dream kitchen.
“Garage” might not be the right word to describe this space, it was originally designed for a car collector, and it has 8 separate garage doors. We can remove the back doors if you don’t need them. Some buyers have used the large garage to store RVs, Tractors, and various other homestead equipment and or toys.
This is a custom home kit made from Structurally Insulated Panels (SIP).
This kit does not require the red iron kit. You buy one kit or the other.
- Structural Insulated Panels or SIP for the entire home structure
- Garage is Red Iron or wood stick build.
- Windows
- Exterior Doors
- Internal Framing
- Floor Joist (not decking)
- Moisture barrier
- Siding (26 Gauge Metal Siding – Hardie and other options available)
- Roofing (26 Gauge Metal Siding – other options available)
55-60% of the home is complete after erection. (Kit price does not include erecting)
Benefits of our SIP Kits:
- Energy Efficiency: SIPs provide superior insulation compared to traditional building methods, leading to significant energy savings for heating and cooling.
- Strength and Durability: SIPs are structurally robust and can withstand considerable loads, making them suitable for various building applications.
- Speed of Construction: Buildings constructed with SIPs can be erected faster than those using traditional framing methods because the panels are prefabricated and can be quickly assembled on-site.
- Reduced Air Infiltration: SIPs create a tighter building envelope, reducing air leakage and improving indoor air quality and comfort.
- Design Flexibility: SIPs can be manufactured in various sizes and shapes, allowing for flexibility in architectural design.
- The Hammond Barndominium Weld-up kit will come with paint for the building.
- Porches, Rafters, and posts are usually done in wood, which is not included.
- The welder will do all wall girts, roof girts, and cutouts on-site.
- Weld-up kits will provide the CNC cut clips for metal structures.
- All clips will be welded on-site by the contractor.
- Paneling is included in the client’s choice of colors. Metal Gauge: 26 Gauge PBR Panel for Roof & Walls
- Peak boxes included
- Rake end caps included
- Colored Tek and Lap Tek screws are included for Panels.
- Butyl Tape and PBR closures are included.
- 2×4 base angle included. *Concrete anchor bolts not included.
- Doors and windows are not included.
* Doors and windows size and placement can be changed at any time without additional charge before finalized engineered plans.- Engineered plan (Engineered for your county) - Approx. 6-8 weeks delivery time after finalized engineered plans have been received and signed
Get Your The Hammond Barndominium Plan Plans
Quick PDF delivery. Architect-sealed for permits. Modify to fit your lot, climate, or style — from $150.
Starting at $1,050 • Single-build license • Quick download
Speak with a build advisor — not a sales rep. We respond within 1 business day.
Thank you for reaching out.
We are here to help. We talk to people just getting started and people ready to break ground. Knowing about your project helps us know where you are in the process before we talk. You will receive an email from Stonie Alfred requesting a bit more information so we can connect you with a home advisor. Filling out the extra information is not required, but it will improve your experience with our team. Happy Building, The My Barndo Team. We are on a mission to improve the home-building process by delivering the most efficient homes at affordable prices.Related products
- 2STORIES
- 5+BED
- 3BATH
- 1 ½ BATH
- 3 GARGS
- 3523SQ.FT
- 60 WIDTH
- 40 DEPTH
- 1STORIES
- 5+BED
- 3BATH
- 1 ½ BATH
- 2 GARGS
- 4453SQ.FT
- 116 WIDTH
- 52 DEPTH
- 2STORIES
- 5+BED
- 3BATH
- 2 ½ BATH
- 3 GARGS
- 3607SQ.FT
- 111 WIDTH
- 51 DEPTH
- 1STORIES
- 5+BED
- 4BATH
- 1 ½ BATH
- 3 GARGS
- 4475SQ.FT
- 106 WIDTH
- 76 DEPTH




