Spacious and Flexible Designs for Growing Families
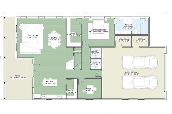
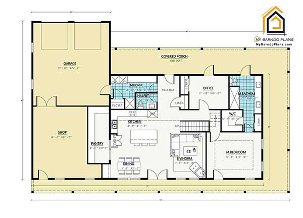
Discover our top-rated collection of five-bedroom barndominium floor plans, designed for families who crave extra space, flexibility, and modern farmhouse charm. These large barndominium homes feature open-concept layouts that connect the kitchen, dining, and living areas—perfect for entertaining and everyday living. High ceilings, oversized windows, and signature elements like sliding barn doors and exposed beams deliver a rustic, yet refined aesthetic. Whether you’re building in the country or planning a suburban dream home, these barndos offer the perfect blend of function and style.
Customizable 5 Bedroom Layouts for Modern Family Living
Each five-bedroom barndominium plan is optimized for comfort and practicality. From luxurious master suites with walk-in closets and spa-inspired bathrooms to guest bedrooms and dedicated home offices, there’s a space for everyone. Many designs feature split-bedroom layouts, bonus rooms or lofts, and spacious laundry or mudrooms to keep things organized. Kitchens often include large islands, walk-in pantries, and open sightlines to the living areas—perfect for hosting and family gatherings. These layouts are ideal for multi-generational households, home-based businesses, or growing families.
Five Bedroom Barndominium Floor Plans
Finding the Right Layout for a Larger Home
Five-bedroom plans offer flexibility for families who need more space without overcomplicating the layout. As you review the plans above, focus on how the bedrooms are arranged and how they connect to the main living areas.
How to Compare Five Bedroom Layouts
- Bedroom placement: Look at how the rooms are grouped and whether the layout provides enough separation for privacy.
- Shared living space: Make sure the kitchen, dining, and living areas can comfortably support a larger household.
- Flexibility: Extra bedrooms can double as offices, guest rooms, or hobby spaces over time.
- Storage and utility space: Larger homes benefit from well-placed laundry rooms, mudrooms, and closets.
- Traffic flow: Consider how people will move through the home, especially between bedrooms and common areas.
At this size, a simple, well-organized layout often works better than adding unnecessary complexity.
Designed for Modern Barndominium Living
Home Plans Include:
- Architectural floor plans and exterior elevations
- Foundation layout with detailed dimensions
- Electrical layout details
- Plumbing rough-in schematic
- Detailed build-ready measurements
- Window and door schedule
- Digital PDF download for fast access
- Optional printed blueprint set
Each plan is designed with real construction in mind and includes the details builders need to move from planning to framing with confidence.
If you plan to build one of these designs, our 5-br barndominium kits can help simplify the process by delivering the structural system engineered for your project.

The Best Barndominium Floor Plans and Kits for Sale on The Web
Buy your floor plans from a company that has experience manufacturing steel buildings and erecting barn-style homes, also known as barndominiums. We only sell floor plans that we would build, and all of our plans are available as steel building kits, and most are available as SIPs kits.














