Ready to Build Barndominium Plans
Explore our full selection of barndominium floor plans designed for easy construction and modern living. Our home plans include detailed electrical layouts, elevations, barndo floor plans and roof plans.
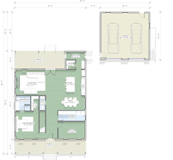
We offer a wide range of small barndominium plans alongside our extensive collection of large barndominium designs with 4 to 6 bedrooms. If you’re looking for a complete solution, check out our barndominium kits — perfect for making your dream home a reality.
Each plan features open-concept layouts with a choice of modern or rustic styles; all homes are engineered to be easy to build and low-maintenance.

The Best Barndominium Floor Plans and Kits for Sale on The Web
Buy your floor plans from a company that has experience manufacturing steel buildings and erecting barn-style homes, also known as barndominiums. We only sell floor plans that we would build, and all of our plans are available as steel building kits, and most are available as SIPs kits.



















