Our ADU Floor Plans category offers a variety of thoughtfully designed Accessory Dwelling Unit (ADU) plans to suit your needs. These compact and efficient floor plans provide all the comforts of a traditional home in a smaller footprint, making them perfect for additional living spaces, guest houses, or rental properties.
Each plan is meticulously crafted to maximize space and functionality, ensuring a comfortable living experience. Explore our selection to find the perfect ADU floor plan that fits your style and requirements.
What is an ADU?
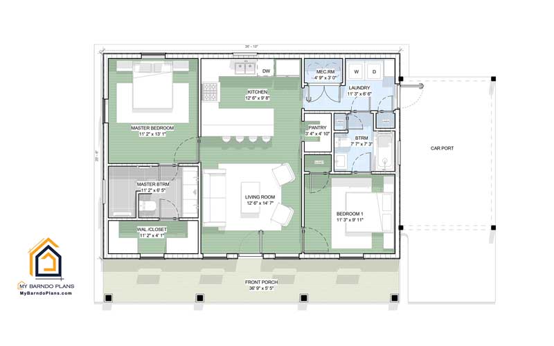
An Accessory Dwelling Unit (ADU) is a secondary housing unit located on the same lot as a primary residence. Often referred to as granny flats, in-law suites, or backyard cottages, ADUs are fully functional living spaces that include a kitchen, bathroom, and sleeping area.
ADUs can take several forms:
- Detached ADUs – Standalone structures, like tiny homes, separate from the main house.
- Attached ADUs – Extensions or additions built onto the primary residence.
- Interior ADUs – Converted spaces within the main home, such as a finished basement or attic.
- Garage Conversions – Transformed garages designed for independent living.
These units are popular as rental properties, housing for family members, or even home offices. They’re valued for promoting affordable housing, multi-generational living, and sustainable development in urban and suburban areas.
Many local governments support ADUs as a solution to the housing shortage, but their construction is typically subject to zoning laws, building codes, and permitting requirements.
At My Barndo Plans we focus on Detached ADUs.

The Best Barndominium Floor Plans and Kits for Sale on The Web
Buy your floor plans from a company that has experience manufacturing steel buildings and erecting barn-style homes, also known as barndominiums. We only sell floor plans that we would build, and all of our plans are available as steel building kits, and most are available as SIPs kits.





