Four Bedroom Huron Barndominium Plan
4 Bedroom Huron barndominium floor plan
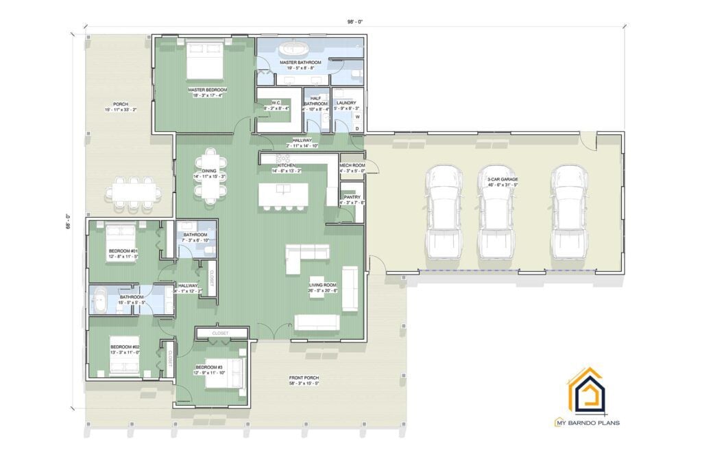
The 4 Bedroom Huron, a stunning single-story barndominium plan that blends timeless farmhouse appeal with the comforts of modern design. Spanning 2,678 square feet of air-conditioned living space, this thoughtfully designed home offers the perfect balance of open-concept living and private retreat areas. Green buildings with SIPs allow for maximum energy efficiency.
Huron Barndominium Floor Plans & Pricing
Floor Plan Specifications
We can modify this floor plan to meet your family’s needs—modifications by the staff architect for $150.
Huron Barndominium
Choose your plan package below
Need Help with Your Barndominium?
Speak with a build advisor — not a sales rep. Free, no obligation.
Get Personalized Help — Free, No ObligationHuron Home Kits
Most buyers building the Huron Barndominium pair it with one of our kits; locking in material costs and cutting months off their build timeline.
Floor Plan Details: Huron Barndominium
Single Story Four Bedroom Home Plan
Inside, you’ll find four spacious bedrooms, 3.5 bathrooms, a dedicated mudroom, walk-in pantry, and a luxurious primary suite that opens into a spa-style bathroom and generous closet. The open living, kitchen, and dining area makes this plan ideal for entertaining, while ample closet space throughout keeps daily life organized.
- 10 Foot Ceilings
- 25’2″ Roof Peak
- 36 Inch Exterior Doors (ADA Compliant)
- Most of the roof is a 6:12 Pitch. Two slopes at 8:12
Huron Barndo Floor Plan includes:
- Floor Plan designed by an architect
- Cross Sections
- Elevations
- Renderings
- Roof Plan
- Electrical Plan
- Window and Door Schedule
The Huron Barndominium features impressive 10-foot wall heights throughout the home, creating a spacious and airy feel in every room. A soaring 25-foot vaulted ceiling at the roof peak adds dramatic volume to the central living area, bringing in natural light and enhancing the open-concept design. These elevated ceilings not only add visual impact but also improve airflow and comfort.
Step outside to over 1,100 square feet of covered porches — perfect for relaxing evenings, morning coffee, or gathering with family and friends. And for the hobbyist, car collector, or weekend warrior, The Huron features an expansive 3-car garage with 1,994 square feet of space.
With a total covered footprint of over 5,700 square feet, The Huron delivers the space you need, the style you want, and the smart layout you’ve been searching for. It’s the ideal home base for families who want room to grow, entertain, and enjoy the good life — barndo style.
The Huron is part of our Great Lakes Kit Collection.
- Engineered plans for the base metal structure are included
- Porches, rafters, and posts are usually made of wood, which is not included.
- The welder will do all wall girts, roof girts, and cutouts on-site.
- Weld-up kits will provide the CNC cut clips for metal structures.
- All clips will be welded on-site by the contractor.
- Paneling is included in the client’s choice of standard colors. Metal Gauge:
- 26 Gauge PBR Panel for Roof & Walls.
- Peak boxes included
- Rake end caps included
- Colored Tek and Lap Tek screws are included for Panels.
- Butyl Tape and PBR closures are included.
- Doors and windows are not included.
- Approx. 4-6 weeks delivery time after finalized engineered plans have been received and signed
Configure This Kit To Estimate Your Budget
Plan on 36k-42k to erect the barndominium kit.
Our Most Complete Home Kit for the Huron
This kit does not require the red iron kit. You buy one kit or the other. The Garage is not SIP—only the house. The garage is traditionally built (and included).
- Structural Insulated Panels or SIPs for the entire living area structure
- Closed Cell Foam Insulated Walls and Roof
- Windows
- Exterior Doors
- Internal Framing
- Moisture barrier
(Kit price does not include erecting)
Benefits of our SIP Kits:
- Energy Efficiency: SIPs provide superior insulation compared to traditional building methods, leading to significant energy savings for heating and cooling.
- Strength and Durability: SIPs are structurally robust and can withstand considerable loads, making them suitable for various building applications.
- Speed of Construction: Buildings constructed with SIPs can be erected faster than those using traditional framing methods because the panels are prefabricated and can be quickly assembled on-site.
- Reduced Air Infiltration: SIPs create a tighter building envelope, which reduces air leakage and improves indoor air quality and comfort.
- Design Flexibility: SIPs can be manufactured in various sizes and shapes, allowing for flexibility in architectural design.
Turnkey Huron Offered in Western Michigan by 1776 Homes.
1776 Homes of Grand Rapids, MI, offers the Huron as a TurnKey build for $588k with mid-grade finish out. Includes building on a slab. Does not include appliances. Price good for a 50 miles radius around Grand Rapids.
If you are a general contractor or licensed builder, you can partner with us to turnkey any of our homes kits.
Get Your Four Bedroom Huron Barndominium Plan Plans
Quick PDF delivery. Architect-sealed for permits. Modify to fit your lot, climate, or style — from $150.
Starting at $950 • Single-build license • Quick download
Speak with a build advisor — not a sales rep. We respond within 1 business day.
Thank you for reaching out.
We are here to help. We talk to people just getting started and people ready to break ground. Knowing about your project helps us know where you are in the process before we talk. You will receive an email from Stonie Alfred requesting a bit more information so we can connect you with a home advisor. Filling out the extra information is not required, but it will improve your experience with our team. Happy Building, The My Barndo Team. We are on a mission to improve the home-building process by delivering the most efficient homes at affordable prices.Related products
- 2STORIES
- 4BED
- 3BATH
- 1 ½ BATH
- 3074SQ.FT
- 56 WIDTH
- 48 DEPTH
- 1STORIES
- 3BED
- 3BATH
- 2702SQ.FT
- 56 WIDTH
- 48 DEPTH
- 1STORIES
- 2BED
- 2BATH
- 2 GARGS
- 1200SQ.FT
- 62 WIDTH
- 56 DEPTH
- 1STORIES
- 4BED
- 3BATH
- 3 GARGS
- 2405SQ.FT
- 100 WIDTH
- 40 DEPTH




