Ask a Question
The 2200 Barndominium
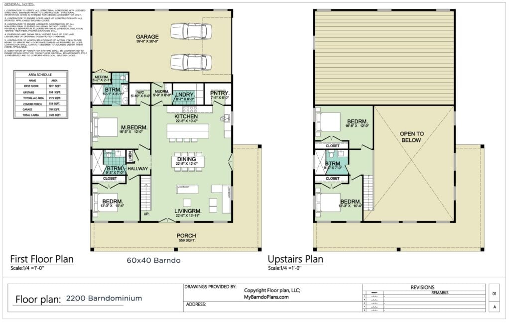
The 2200 Barndominium floor plan features four bedrooms and three bathrooms. It is set in a standard 40×60 steel building footprint, making it easy to build and source materials.
Home Plan includes a Floor Plan designed by an architect, a Roof Plan, an Electrical Plan, a Window and Door Schedule, Elevations, & Renderings.
This home plan can be modified to meet your needs. You can build this anywhere in the lower 48.
The floor plan is available for Red Iron. We only offer One kits types for this plan.
This home plan can be modified to meet your needs. You can build this anywhere in the lower 48.
The floor plan is available for Red Iron. We only offer One kits types for this plan.
A Barndominium Floor Plan Designed To Keep Cost Down and Maximize Space
2,175 Sq Feet with four bedrooms maximizes the livable space in this two-story barndominium. The garage is large enough for 2 cars and a big shop or work area. This barndominium can be built in most colors; black is one of the more popular barndo colors.
Welcome to our newest addition, the 2200 Barndominium! This beautifully designed home plan offers 2,175 square feet of comfortable living space, perfectly blending modern amenities with rustic charm.
Key Features:
- Spacious Living: With 4 bedrooms and 3 bathrooms, this home is ideal for families of all sizes.
- Open Living Area: The heart of the home features an open living area, perfect for entertaining and family gatherings.
- Wrap-Around Porch: Enjoy the outdoors from the expansive wrap-around porch, providing ample space for relaxation and socializing.
- Upstairs Bedrooms: Two of the four bedrooms are located upstairs, offering privacy and a cozy retreat.
- Large Garage: A generously sized garage ensures plenty of room for vehicles and storage.
- Easy to Build: Designed with simplicity in mind, this plan makes the building process straightforward and efficient.
Whether you’re looking to build your dream home in the countryside or seeking a versatile and stylish living space, the 2200 Barndominium offers everything you need. Explore the perfect blend of functionality and charm with this exceptional home plan.
Red Iron Steel Kit $65,000
The steel barndominium kit includes all metal for the main steel structure, roof, siding, and porch roof material.
Wood posts and wood rafters are not included. Windows and doors are not included.
Plan on spending 30k-36k to erect the barndominium kit.
The kit is the shell. You will need to frame walls and floors inside with wood. Kit does not include installation.
Related products
- 1STORIES
- 3BED
- 3BATH
- 2702SQ.FT
- 56 WIDTH
- 48.3 DEPTH
- 1STORIES
- 3BED
- 2BATH
- 1 ½ BATH
- 2 GARGS
- 2280SQ.FT
- 82.5 WIDTH
- 40 DEPTH
- 1STORIES
- 3BED
- 3BATH
- 3 GARGS
- 2661SQ.FT
- 70 WIDTH
- 50 DEPTH
- 1STORIES
- 2BED
- 2BATH
- 2 GARGS
- 1200SQ.FT
- 62 WIDTH
- 56 DEPTH










