Ask Question
3 BR Centennial Barndominium with RV Parking
We can modify this 3-br floor plan to meet your family’s needs. Modifications by the staff architect for $150.
Configure This Kit To Estimate Your Budget
The home kit is available for SIP Wall and Red Iron. The floor plan can be modified for any building type.
We can modify this 3-br floor plan to meet your family’s needs. Modifications by the staff architect for $150.
Configure This Kit To Estimate Your Budget
The home kit is available for SIP Wall and Red Iron. The floor plan can be modified for any building type.
3 BR Barndo with RV Parking; The Centennial Barndominium
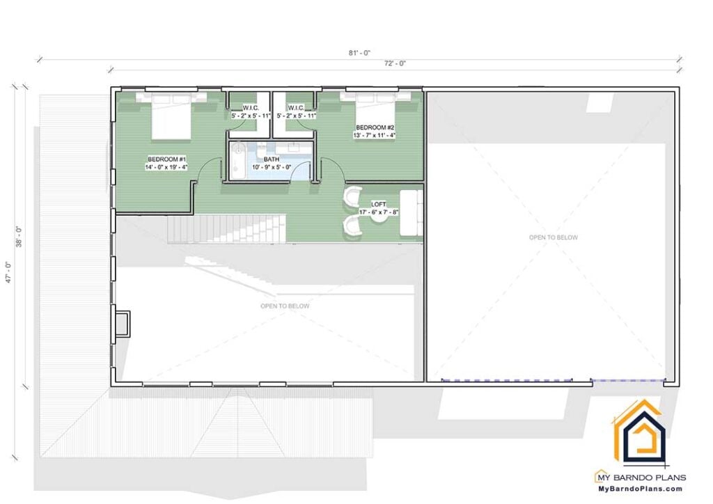
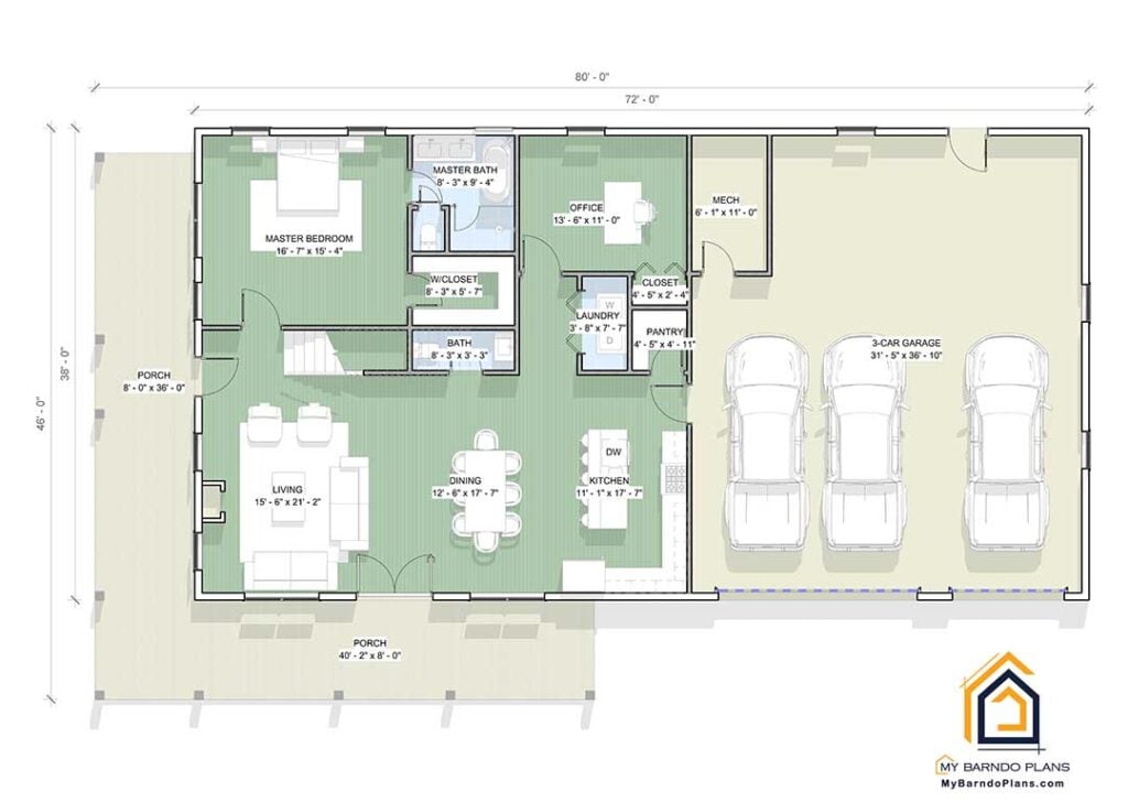
The Centennial RV Barndominium is designed for families who live big. You get 3 bedrooms and 2.5 baths, including a private first-floor master suite plus two oversized bedrooms upstairs. A central loft overlooks the living room, adding volume and a dramatic open feel.
The first floor is where this layout really shines. The living, dining, and kitchen areas blend together in a clean, open design that feels bright and spacious. The walk-in pantry, full laundry room, office, and guest half-bath make daily life easier and more organized. Outside, the full-length porch is perfect for grilling, relaxing, or watching storms roll across your land.
Upstairs, the two additional bedrooms each have walk-in closets and share a full bath. The loft gives you flexible space for kids, a TV area, or a reading spot.
Everything about the Centennial is meant to be simple to build, easy to furnish, and comfortable to live in.
RV Garage & Shop
The Centennial comes with a serious garage setup. You get three standard bays plus a full-height RV bay, deep enough to handle Class A motorhomes, large boats, or tall equipment. With 31 feet of depth and wide overhead doors, backing in a camper or trailer feels natural, not stressful.
There’s room for tools, projects, storage, and daily drivers with space to spare. Whether you run a home-based business, do weekend projects, or just want a garage that finally fits your RV, this shop delivers.
Master Suite Description
Your first-floor master suite sits privately on its own side of the home. The bedroom is spacious and quiet, with direct access to the hallway and living area. The master bath includes a full tub and shower combination, a large vanity, and bright natural light. A walk-in closet completes the suite with plenty of storage for two.
This setup gives you privacy on the main level while the upstairs bedrooms and loft provide space for kids, guests, or extended family.
Related products
- 2STORIES
- 2BED
- 1BATH
- 1 ½ BATH
- 1000SQ.FT
- 20 WIDTH
- 25 DEPTH
- 2STORIES
- 5+BED
- 3BATH
- 2 ½ BATH
- 3 GARGS
- 4159SQ.FT
- 60 WIDTH
- 40 DEPTH
- 1STORIES
- 2BED
- 2BATH
- 1200SQ.FT
- 30 WIDTH
- 40 DEPTH
- 1STORIES
- 3BED
- 3BATH
- 2702SQ.FT
- 56 WIDTH
- 48.3 DEPTH




